CORPUS CHRISTI, Texas — Shipping containers are typically made to transport items and goods, but now they have been converted into livable homes. The fad has now caught on in the Coastal Bend.
"We’re hoping that this will be a structurally safe, sound, durable option," said Bryan Johnson the owner and developer of the property.

Johnson says the plan is to roll out 30 containers, in 3 phases.
"We are going to be working on the site plan, I would expect within the next 6-9 months. We’re going to do this in three phases, ten units at a time, to get to the thirty. Were hoping to have ten units finished and ready to go by the end of the year," Johnson said.
Johnson said there is a demographic of people these shipping containers-turned apartments are aimed to help.
"To help over 55 seniors on fixed income. We work with the HUD-VASH program, which is the Corpus Christi housing authority and the Veterans Administration working together, to help veterans and people that need assistance," Johnson said.
The proposed location for these shipping containers is on 922 W Lakeside Drive near NAS and Waldron Road.

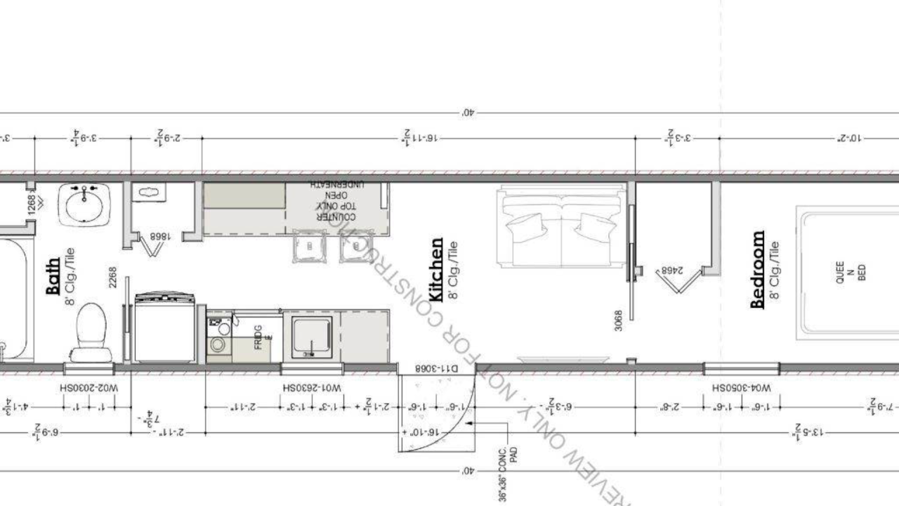
Johnson said the containers are 40 feet long, and 8 feet wide, adding that each container will be made accessible for those that may be less mobile.
"We're going to have pier and beam foundation with a ramp up to that level for accessibility," Johnson said.
The City Council will have its final vote on Tuesday, March 26. for the re-zoning of the property. If it is approved the development will be approved

For the latest local news updates, click here, or download the KRIS 6 News App.